QDY series double-girder metallurgical bridge cranes are engineered for demanding molten metal handling (steel, iron). Featuring A7/M8 duty, high-temperature resistance, dual braking, and intelligent controls for safety and precision in foundries.
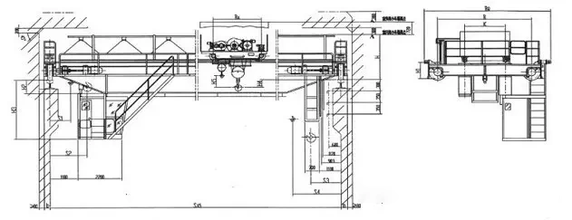
The QDY series double girder electric overhead traveling ladle crane is engineered for demanding metallurgical operations, including the safe and efficient handling of molten steel in steel mills and foundries. Its robust construction integrates a main beam, connecting beam, long-travel assembly, lifting trolley, and a high-performance hook system with wire rope. The complete setup also features cab controls and a sophisticated electrical management system.
This crane model supports primary hoisting capacities from 5 to 74 tons. Its main hook is specifically designed to lift and transport steel ladles, while the auxiliary hook assists in tasks such as pouring molten metal and managing slag. All key movements—hoisting, trolley traversing, and long-travel—utilize a variable speed control system with a wide 1:10 speed ratio, ensuring precise load positioning. Custom speed configurations are available to meet specific operational needs.
The QDY series Double-Girder Metallurgical Overhead Crane is a heavy-duty, specialized lifting system designed explicitly for the extreme conditions of metallurgical and foundry operations. Its primary application is the safe and efficient handling of molten metals (e.g., molten steel, iron) and high-temperature materials in environments with significant heat, dust, and continuous operational demands.
Built in full compliance with stringent Chinese standards for metallurgical cranes (JB/T7688.1-95 & JB/T7688.15-95) and incorporating international safety principles, the QDY crane surpasses ordinary overhead cranes (QD type) with reinforced structural integrity, enhanced safety redundancies, and superior heat protection systems. It is the reliable core equipment for critical production stages like charging, tapping, and transporting within smelting and hot-working workshops.
Key Features & Construction Advantages:
Main girders are fabricated using automated welding technology and undergo comprehensive shot blasting (Sa2.5 standard), followed by ultrasonic testing to guarantee structural integrity and a long service life.
Advanced multi-speed control for all major motions enables exceptionally smooth and accurate load handling, which is critical for ladle operations.
A full suite of protective mechanisms is included, such as weight overload protection, phase sequence protection, zero-position safety, and emergency stop functionality.
Redundant safety limits for crane travel and hoisting movements, combined with high-grade polyurethane buffers, provide reliable endpoint protection.

Key Features & Technical Advantages
Engineered for Extreme Environments:
High-Temperature Resilience: Designed to operate reliably in ambient temperatures from -10°C to +50°C, with critical components protected against radiant heat up to 300°C from molten loads. This includes the use of H-class insulated motors, heat-resistant cables, and thermal shielding on the girders.
Robust Duty Rating: Offers a high work classification of A7/M8, suitable for intensive, continuous cycling typical in busy melting and casting shops.
Uncompromising Safety Systems (Dual & Redundant):
Dual Braking System: Equipped with two independent braking mechanisms to ensure failsafe stopping power.
Dual Limiting Devices: Incorporates both weight-type and rotary-type limit switches for hoisting, with additional lower-limit protection for lifts over 20m.
Integrated Safety Suite: Features overload limiters, emergency stop functions, and (where applicable) anti-overspeed protection for hoisting drives. Electrical systems are designed with protective measures against contactor failure.
High-Spec Components: Utilizes steel (non-cast iron) sheaves and high-temperature resistant wire ropes with ample safety factors.
High Performance & Precision Control:
Efficient "Three-in-One" Drive: The integrated motor, brake, and reducer unit offers high transmission efficiency, compact design, and reduced maintenance.
Variable Frequency Drive (VFD): Enables smooth stepless speed control for precise load positioning, significantly minimizing swing when transporting liquid metal. Trolley and bridge travel achieve speeds up to 30 m/min with reduced start-stop impact.
Synchronized Dual-Hoist Operation: The dual-motor, dual-drum design allows for coordinated main/auxiliary hook movements, tested for precise synchronization.
Split Drive for Bridge Travel: Ensures excellent synchronization and smooth, stable movement even in challenging plant conditions.
Intelligent Operation & Monitoring:
PLC-Based Control: Provides reliable logic control and can interface with advanced automation systems.
Remote Control & Monitoring Options: Supports remote operation to keep personnel away from heat sources, along with real-time data transmission and fault diagnostics for predictive maintenance.
Integrated Safety Systems:
The crane is equipped with multiple, overlapping safety layers, including an overload limiter, emergency stop system, travel limit switches, and comprehensive electrical protections against under-voltage, over-current, and short-circuit faults. This ensures secure operation in the most challenging industrial settings.
Technical Specifications (Typical Range)
Lifting Capacity: 5 ~ 100 Tons
Span: 10.5 ~ 31.5 Meters
Duty Class: A7, M8
Ambient Temperature: -10°C to +50°C
Applicable Standards: JB/T7688, customized to meet other regional safety standards.
Operational Specifications:
Suitable for ambient temperatures from -10°C to +60°C.
Designed for heavy-duty service, conforming to A6 to A8 work class ratings.
Standard power supply is 3-phase, 380V, 50Hz, with alternative configurations available.
Applications
Ideal for various demanding processes in metallurgy:
Charging furnaces
Transporting ladles with molten steel/iron
Handling hot ingots, slabs, or coils
Forging and hot processing areas
Scrap and material handling in foundries
Why Choose Our QDY Metallurgical Crane?
We deliver not just equipment, but a certified safe and productive solution. Our QDY cranes are built with proven robustness, incorporate mandatory and advanced safety features, and are designed for durability in harsh industrial environments. They represent the optimal blend of safety engineering, operational efficiency, and technological control for your most critical lifting tasks.
Contact us for a detailed quotation and to discuss customizing a QDY crane to your specific workshop layout, capacity, and process requirements.
The double beam ladle crane serves as a critical handling solution in high-temperature industrial settings, specifically engineered for the demanding conditions of steel production and heavy metal processing. Its robust design ensures reliable performance in challenging environments filled with heat, dust, and frequent operational cycles.
Primary Applications & Suitable Environments:
Steel Mills & Foundries: Essential for transporting molten steel and hot metals within steelmaking workshops. This crane reliably operates under intense heat and in dusty atmospheres where precision and safety are paramount.
Metallurgical Plants & Busy Workshops: Ideal for facilities with high-duty cycles, this crane handles frequent ladle transfers, pouring operations, and other auxiliary lifting tasks in bustling metallurgical plants and casting floors.
Heavy-Duty Industrial Settings: Designed for applications requiring not just strength but also added functionality. Its configuration supports the integration of walkways, built-in lighting, and other specialized equipment for enhanced operational efficiency and safety.
Work Class & Operational Intensity:
A5 Classification: Suitable for workshops with moderate usage frequency, such as machining and assembly plants.
A6 Classification: Applied in facilities with higher operational frequency, commonly seen in metallurgical plants and foundries for auxiliary hoisting operations.
A7 Classification: Built for intensive use in busy industrial settings, including continuous melting and hot metal handling applications where equipment durability and uptime are critical.
Wechat:
+86 16627702870