Home > Overhead Crane > Double Beams Insulation Type Bridge Crane
product
Isolation crane
Insulation Overhead Crane
Isolation overhead crane
Insulation Overhead Crane
Insulation Overhead Crane for Smelting Workshops
Insulation type of double girder overhead crane
Insulation bridge Crane
Insulation Overhead Crane for Smelting Workshops
Isolation crane
Insulation Overhead Crane
Isolation overhead crane
Insulation Overhead Crane
Insulation Overhead Crane for Smelting Workshops
Insulation type of double girder overhead crane
Insulation bridge Crane
Insulation Overhead Crane for Smelting Workshops
Double Beams Insulation Type Bridge Crane
Authentication mark:
ccc
ce
Capacity:
5, 10t
Lifting Height:
Customized
Voltage/Hertz:
380V/50HZ
Working Class:
A6, A7
Span:
10.50
Apply: The QY Series Insulating Overhead Crane is engineered for specialized applications in electrolysis processes and metallurgical workshops handling non-ferrous metals, such as aluminum and magnesium.
Get a Free Quote
Introduction
Technical Data
Application
Features
Certificate
Inquiry
PRODUCT INTRODUCTION
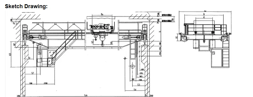
The Double Beams Insulation Type Bridge Crane is a heavy‑duty, heat‑resistant overhead crane specifically designed for extreme high‑temperature environments such as steel mills, foundries, forging shops, and glass manufacturing plants. Unlike standard cranes, this crane incorporates advanced thermal insulation and heat‑shielding technologies to protect its structural components, electrical systems, and operator cabin from radiant heat, molten metal splashes, and hot particulate matter.

The crane features a double girder construction for exceptional rigidity and load stability. The main girders, trolley, and hoist are equipped with multi‑layer thermal insulation blankets, reflective heat shields, and air‑gap barriers. The hoist motors, brakes, and limit switches are housed in heat‑resistant enclosures with forced air cooling or water‑cooled jackets. The operator cabin is fully insulated, air‑conditioned, and pressurized to keep the internal temperature safe and comfortable even when ambient temperatures exceed 80°C near furnaces or ladles.
introduction
TECHNICAL DATA
parameter
APPLICATION
1. Steel Melting Shop – Electric Arc Furnace (EAF) Area Hot Metal Charging: Transferring a ladle of molten iron from a blast furnace or smelter to the EAF for hot metal charging. Furnace Maintenance: Lifting furnace roof sections, electrode arms, and water‑cooled panels during relining or repair, with the crane operating in intense heat. Slag Pot Handling: Transporting heavy slag pots (filled with liquid slag) from under the furnace to the slag processing area.

2. Basic Oxygen Furnace (BOF) / LD Converter Plant Ladle Transfer: Moving a full ladle of molten steel (200‑300 tons) from the BOF to the ladle冶金 furnace or continuous caster turret. Scrap & Flux Charging: Using an auxiliary hoist to tip scrap boxes and lime bins into the BOF mouth. Master Lance & Sub‑Lance Handling: Positioning and replacing the oxygen lance and sublance in the furnace, where temperatures exceed 1500°C near the mouth.

3. Ladle Metallurgy Furnace (LMF) Station Ladle Placement: Precisely positioning a ladle of molten steel under the ladle furnace roof for alloying and heating. Electrode & Cover Handling: Lifting the furnace cover and electrode columns for maintenance. Wire Feeding System Access: Servicing the wire feeders that add alloying elements into the ladle.

4. Continuous Casting (Concast) Area Ladle onto Turret: Lifting a full ladle (100‑300 tons) and placing it onto the ladle turret of the caster. The crane must withstand radiant heat from the ladle and tundish. Tundish Handling: Lifting and positioning tundishes (preheated to 1000°C+) under the ladle. Mold & Segment Change: Removing and installing heavy molds, oscillator tables, and segment rollers in the casting platform area.

5. Foundry & Casting Shop (Iron & Steel) Molten Metal Pouring: Lifting a ladle of molten iron (10‑50 tons) and pouring into sand molds or permanent molds. The insulation protects the crane from heat radiating from the ladle and from splashes. Cope & Drag Handling: Lifting heavy cope (top) and drag (bottom) mold halves that may still be hot from the molding process. Shakeout & Cooling: Handling hot castings (still red‑hot) from the shakeout conveyor to cooling racks.

6. Forging Shop & Press Area Ingot Handling: Lifting red‑hot ingots (up to 100+ tons) from reheating furnaces to the forging press. Die Changing: Removing and installing heavy forging dies (also hot) in the press area. Manipulator Support: Coordinating with a forging manipulator to handle large hot workpieces.
FEATURES
1
Double Girder Construction: Provides maximum rigidity and load distribution for heavy lifts in high‑heat environments.
2
Thermal Insulation System: Multi‑layer ceramic fiber blankets, reflective aluminum shields, and air gaps on girders, trolley, and hoist.
3
Heat‑Protected Electrical Components: Motors, brakes, and control panels housed in insulated, fan‑cooled or water‑cooled enclosures.
4
Insulated Operator Cabin: Air‑conditioned, pressurized, with heat‑reflective windows and emergency oxygen supply (optional).
5
High Lifting Capacity: 10 to 100+ tons, suitable for ladles, scrap baskets, and heavy equipment.
6
High Duty Cycle: Built for continuous operation near furnaces (FEM A7‑A8).
CERTIFICATE
RELATED PRODUCTS
GET YOUR FREE ESTIMATE
Please fill in the following form. We will contact you and jointly discuss your crane issues!
SUBMIT
form
Get Quote
wechat
Wechat

Wechat:

+86 16627702870

0.068444s