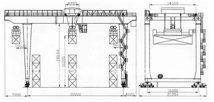
Engineered for high-performance container handling in ports and rail terminals, this rail-mounted gantry crane (RMG) features a robust double-girder structure, vertical legs, and specialized end trucks for smooth rail movement. The top-running trolley is paired with a flexible spreader capable of securely lifting 20′, 40′, and 45′ containers.
Built to maximize operational efficiency, the RMG’s vertical leg design enables seamless container passage between the span and cantilever areas. A rotary-type cart ensures steady multidirectional loading and unloading, while an optional non-rotary cart with a rotating spreader provides added versatility for container positioning.
Designed for demanding, all-weather applications, this crane meets M6 to M8 (ISO) duty classifications and features variable frequency drives for precise speed control. It performs reliably across extreme temperatures, from -40°C to 40°C, making it ideal for harsh environments.
Compliant with GB standards and certified by ISO and CE, this RMG model guarantees safety, durability, and international compliance.


Key Mechanical Components & Construction
Welded double-box girder with deflection adhering to GB/DIN/FEM standards
High-strength steel (Q235B, Q345B/E) for structural integrity
Trolley rails made from durable 16 Mn hot-rolled flat steel
Triple-layer epoxy zinc-rich coating (120μm) ensures corrosion resistance and lasting aesthetic quality
Integrated welding of girder and end beam enhances structural strength and alignment accuracy
End trucks include flat or double-rim wheels, anti-friction bearings, buffers, and anti-derailment safety plates
Convenient maintenance walkway with patterned plate flooring and 1050mm handrails
Wechat:
+86 16627702870